Željeznica i dodaci za dizalice posebno se koriste za dizalice. Uz šine dizalica, važni dodaci za dizalice uključuju i šine željezničke željeznice, željeznički jastuk dizalica, željezničku stezaljku dizalica, pločice za podmetače dizalica itd. Budući da se dizalice uglavnom koriste za teški prijevoz opterećenja, upotreba posebnih dijelova kao što su željeznička željeznica, šina i željezničke željeznice i jedini ploča s dizalicama posebno je važna.

Kao jedan od iskusnih dobavljača željeznice,ŽeljeznicaŽeljeznica i dodaci za dizalice prodavali su se u inozemstvu i široko se koristili u mnogim poljima kao što su željezničke pruge, struja, rudarstvo, metalurgija, čelične mlinice, luke, brodogradilišta, kokiranje itd. Industrije.
Zatim ćemo vam dati detaljan uvod u specifikacije dizalica u različitim standardima, pomažući vam da odaberete proizvod koji najbolje ispunjava vaše zahtjeve. GNEE Rail može dostaviti šine dizalica bilo kojeg standarda, a ako imate posebne potrebe za prilagodbom, molim vaskontaktirajte nas.
Dizalica
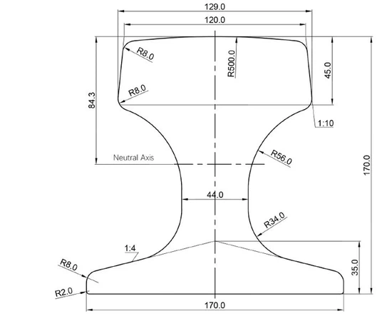
Putnička staza dizalica je ruta dizalice koja se nalazi pored dizalica. Može osigurati da dizalica prolazi duž propisane linije i osigura sigurnost prijevoza. Odabir željeznice dizalice obično se podudara prema vrsti dizalice. Konkretno, uglavnom se odnosimo na maksimalni tlak kotača i minimalni tlak kotača dizalice za izračunavanje veličine željeznice i odabrane veličine kotača pomoću dizalice.
Prema različitim vrstama dizalica, postoje različite potporne željezničke željeznice, kao što su željeznica nadzemne dizalice, šina s dizalicama itd. Kada odaberemo željeznicu dizalice, ne bismo trebali razmotriti samo veličinu kotača, već i razmotriti dizajn i ugradnju željeznice dizalice u stvarnom okruženju.
Kineska standardna željeznica dizalica
Qu70 dizalica dizalica

- Oznaka željeznica: Qu70
- Željezničko podrijetlo: Kina
- Standard: YB/T5055-93
- Područje odjeljka: 6722 mm2
- Izračunana masa: 52,8 kg/m
- Neutralna os do baze: 59,3 mm
Qu80 dizalica

- Oznaka željeznica: Qu80
- Željezničko podrijetlo: Kina
- Standard: YB/T5055-93
- Područje odjeljka: 8206 mm2
- Izračunana masa: 64,4 kg/m
- Neutralna os do baze: 64,9 mm
Que100 željeznička željeznica

- Oznaka željeznica: Qu100
- Željezničko podrijetlo: Kina
- Standard: YB/T5055-93
- Područje odjeljka: 11344 mm2
- Izračunana masa: 89 kg/m
- Neutralna os do baze: 76,3 mm
Qu120 željeznička željeznica

- Oznaka željeznica: Qu120
- Željezničko podrijetlo: Kina
- Standard: YB/T5055-93
- Područje odjeljka: 15096 mm2
- Izračunana masa: 118,5 kg/m
- Neutralna osi do baze: 87 mm
Pored dizalica, pružamo i dodatke za željeznice za dizalice kao što jeŽeljeznička stezaljka dizalica, pločice za potplat dizalica, željeznička ploča s dizalicamaitd.Kliknite ovdjeDa biste dobili detaljan katalog proizvoda GNEE Rail.


